惠州市公共资源交易中心土地与矿业挂牌电子交易系统

2017-12-25

系统登录入口

公告详情

交易信息 (已成交)
公告编号: 惠公易土仲恺 [2021] 026号 挂牌编号: GZK2021-26
挂牌起始时间: 2021年03月22日09时00分 挂牌截止时间: 2021年04月06日10时00分
起始价(万元): 5794 竞买保证金(万元): 1159
增价幅度(万元): 100 保证金到账截止时间: 2021年04月06日09时00分
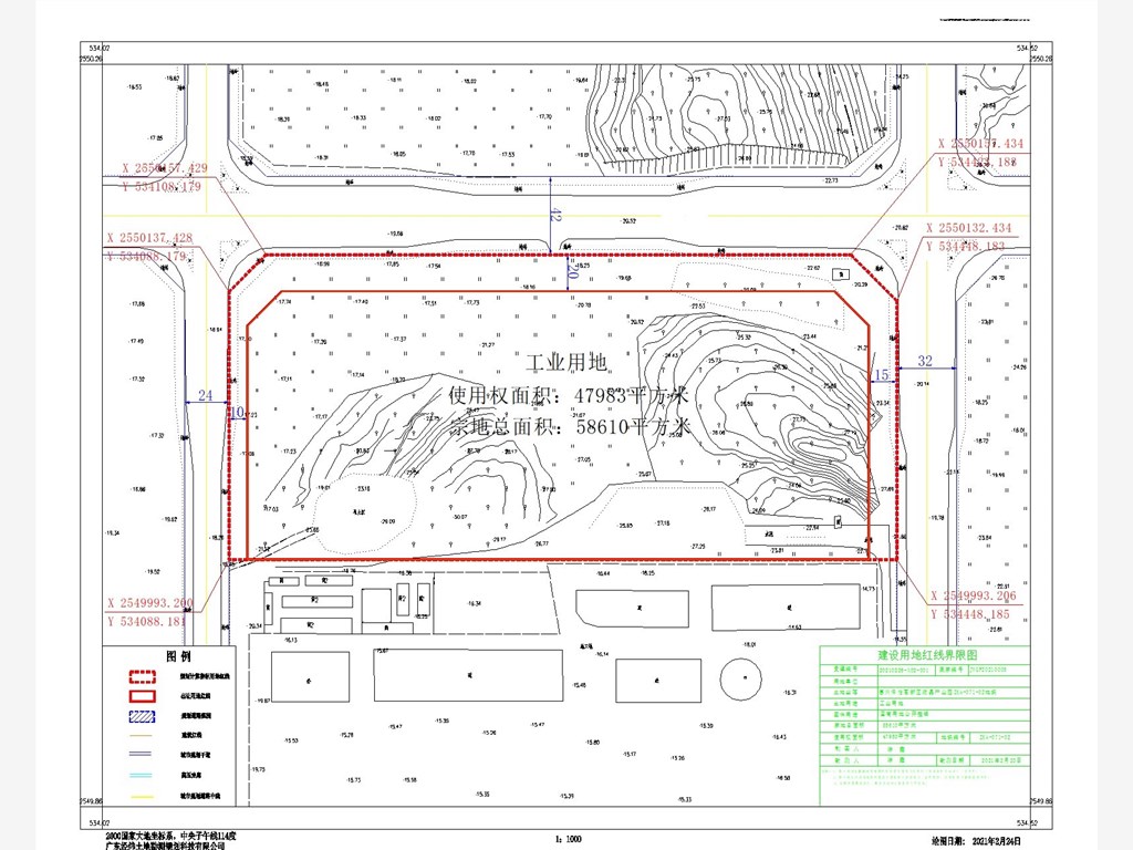
注册资金(万元): 0 宗地使用权面积(m²): 47983
是否有底价: 无底价 最高报价: 5794.000000 万元
委托方: 仲恺高新区国土资源分局 国土证号:
成交时间: 2021/4/6 10:00:00
竞得人: 惠州亿纬锂能股份有限公司 成交价: 5794 万元

土地规划指标
用地编号: ZKA-071-02 建筑系数:
土地位置: 陈江街道 计算指标用地面积(m²): 58610
土地用途: 工业用地 规划建筑总面积(m²): 158247㎡≤S≤205135㎡
土地使用年限: 50 其中住宅总面积(m²):
容积率: 2.7≤R≤3.5 建筑密度(%): ≥30
绿地率(%): 15%≤绿地率≤20% 开发程度:
其他需要披露的事项

(一)宗地总面积:58610㎡(其中使用权面积为47983㎡)。

(二)中华人民共和国境内外的法人和其他组织(除法律法规另有规定外)具备本条规定条件的,均可申请参加竞买。申请人可以单独申请,也可以联合申请,竞买申请人必须同时具备下列条件:

1.缴交竞买保证金1159万元人民币;

2.提交仲恺高新技术产业开发区科技创新局出具的与该宗地产业类型一致的优先发展产业项目文件;

3.拖欠地价款、闲置土地、囤地炒地的企业及其控股股东不得参与竞买。

(三)申请人应当详细阅读挂牌出让公告、出让须知、出让宗地相关信息,如对网上挂牌交易相关文件有疑问的,可向我中心咨询,竞买申请一经提交,即视为申请人对本次挂牌交易相关文件无异议。

(四)本次网上挂牌交易实行网上成交后审查制度,竞得人存在违法违规行为或不具备竞买资格的,竞得结果无效,造成损失的,还应依法承担赔偿责任。

)宗地权属清晰,地块周边基础设施完善,具备动工所需的条件;

)竞得人除缴交成交地价款外,还需按规定缴交契税等有关税费;

)项目竣工验收时,未达到本公告规定的集约用地指标或者非优先发展产业的,用地单位必须按《出让合同》的约定缴交违约金;

)竞得人须在签订《出让合同》时,同步与惠州仲恺高新技术产业开发区管委会签订《仲恺高新区产业项目投资建设协议书》;

)非仲恺高新区注册登记的企业竞得土地使用权的,必须在竞得土地后2个月内在仲恺高新区工商行政管理部门注册成立项目开发公司,并以该公司名义办理土地出让与登记发证手续;

)竞得人有下列行为之一的,视为违约,取消竞得人资格,竞买保证金的20%不予退还,并由有关部门依法处理,造成损失的,竞得人还应依法承担赔偿责任:

1.不符合竞买资格条件的;

2.采取行贿、恶意串通等非法手段竞得的;

3.竞得人以其他非法手段竞得的;

4.竞得人逾期或拒绝签订《成交确认书》的;

5.不按须知规定提供有关纸质文件材料,或提供虚假文件材料、隐瞒重要事实,引起交易纠纷的;

6.构成违约责任的其他行为。